Commercial Tenant Improvements
We provide full architectural, engineering, and permitting solutions for commercial projects across California.
Our team handles tenant improvements from concept to city-ready plans, coordinating all required disciplines under one scope. We specialize in restaurants, coffee shops, retail, and light commercial spaces, ensuring projects move forward smoothly and on schedule.
Company Verification (California)
- ✅ California Secretary of State
- 👉 Verify Here
- ✅ Entity Number: 202135510258
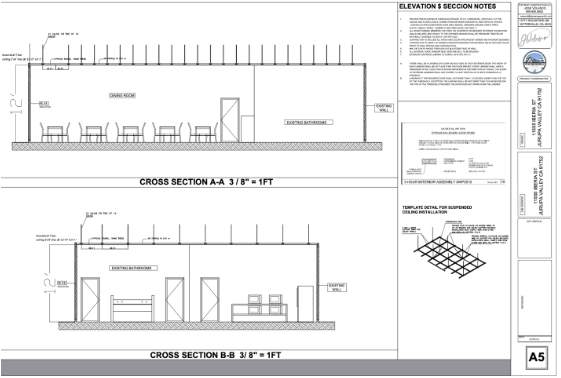
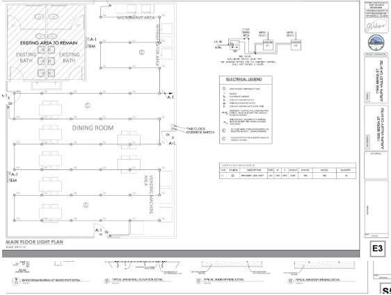
Commercial Project
Coffee Shops & Restaurants
What We Do:
- Tenant Improvements (TI)
- Space reconfiguration
- ADA compliance layouts
- Pickup-only or dine-in configurations
- Health Department–ready layouts
Benefit:
Design functional, code-compliant layouts that enhance customer flow, meet ADA and health requirements, and optimize your coffee shop or restaurant space.


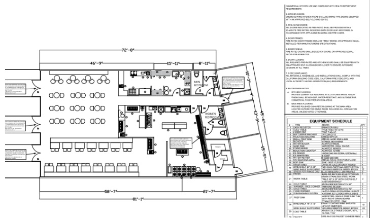
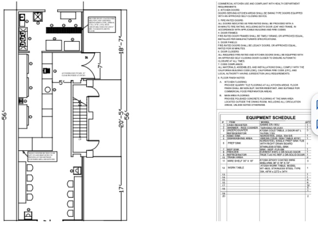
Equipment Layouts
What We Do:
- Kitchen equipment plans
- Commercial appliances placement
- Clearances & workflow optimization
- Coordination with mechanical & electrical
Benefit:
Optimize kitchen efficiency and workflow with properly placed equipment, clearances, and coordinated mechanical and electrical plans.

Commercial Kitchen Design
What We Do:
- Functional kitchen layouts
- Health & safety compliance
- Workflow efficiency
- Coordination with city & fire departments
Benefit:
Create a safe, efficient, and code-compliant commercial kitchen that supports smooth workflow and meets city and fire department requirements.



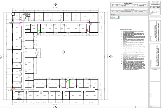
Architectural Plans
What We Do:
- Existing conditions drawings
- New construction & additions
- Wall additions, removals, and reconfiguration
- Code-compliant layouts for commercial use
Benefit:
Create accurate, code-compliant architectural plans that support commercial construction, additions, and space reconfigurations efficiently.


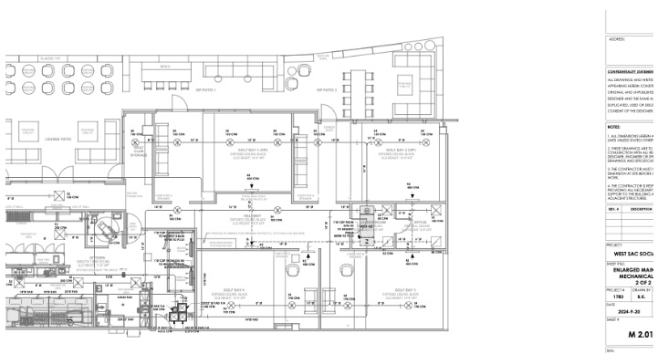
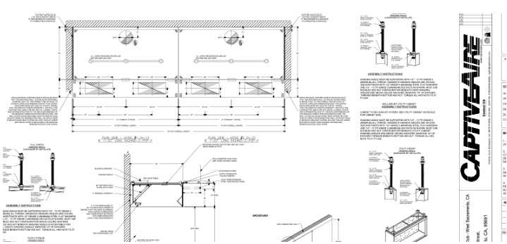
Structural & Engineering
What We Do:
- Structural calculations & details
- Mechanical, Electrical & Plumbing (MEP)
- Load analysis for new equipment
- Engineer-stamped plans when required
Benefit:
Ensure your building is structurally sound and fully compliant, with precise calculations, MEP coordination, and engineer-stamped plans when needed.



Fire Sprinkler & Life Safety
What We Do:
- Fire sprinkler plans
- Fire alarm coordination
- Code analysis with AHJ requirements
- Life safety compliance
Benefit:
Protect your building and occupants by ensuring fire sprinkler systems, alarms, and life safety measures meet all code and AHJ requirements.

Turnkey Commercial Design
What We Do:
- Architecture + Engineering under one team
- City-ready permit sets
- Digital submission & corrections handling
- Coordination with multiple agencies
Benefit:
Simplify your commercial project with a single team handling architecture, engineering, and city permit approvals for a smooth, turnkey process.
Why Work With Us
• One team for architecture, engineering, and permits
• Experience with multiple city digital platforms
• Reduced coordination errors
• Faster turnaround and fewer revisions
• Clear scope and transparent process
Ready to streamline your commercial project permits? Contact us today and let our experts guide your project from start to approval.
