Residential Design & Permits Made Simple
From home renovations to new construction, we handle all architectural, engineering, and permitting needs for residential projects.
Our team provides structural engineering, civil and site planning, architectural design, and MEP & Title 24 compliance, ensuring every project is safe, code-compliant, and moves forward smoothly from concept to city approval.
Company Verification (California)
- ✅ California Secretary of State
- 👉 Verify Here
- ✅ Entity Number: 202135510258
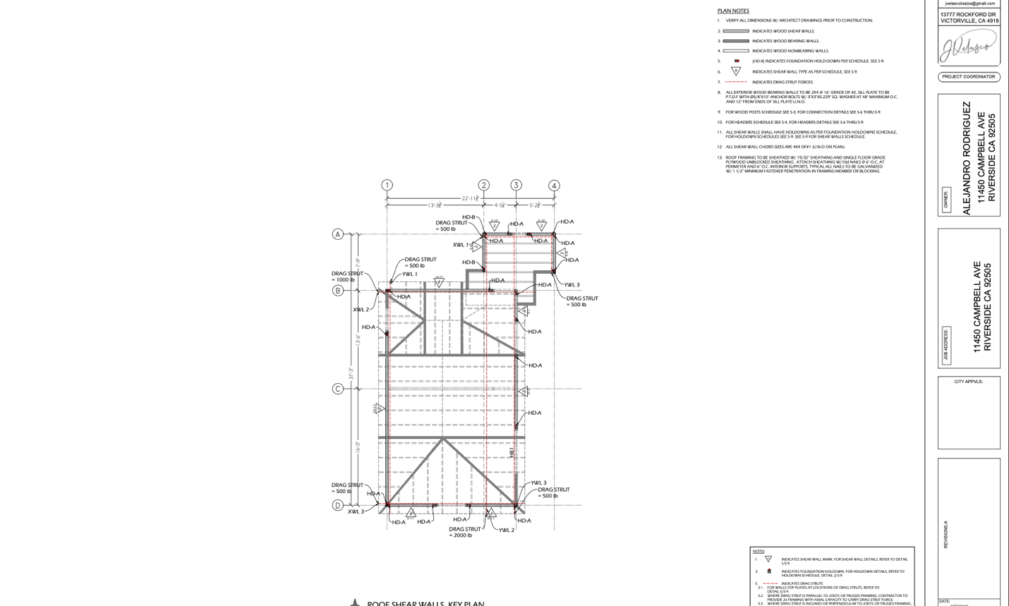
Structural Engineering & Calculations
What We Do:
- Structural analysis and design
- Structural calculations for city approval
- Framing plans
- Foundation design
- Load calculations (gravity, lateral, seismic)
- Coordination with architectural plans
- Compliance with local building codes
Benefit:
Ensure your home is structurally sound and meets all safety and code requirement


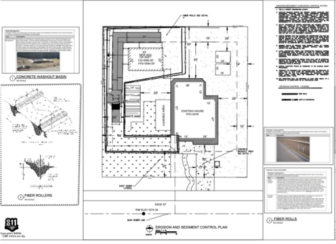
Civil Engineering
What We Do:
- Site plans
- Municipal coordination
- Grading & Drainage
- Drainage control
- Slopes and elevations
- City compliance
Benefit:
Optimize site design and ensure smooth coordination with city authorities


Site Plan & Land Information
What We Do:
- Site Plan development
- Property boundaries
- Setbacks and buildable area
- Lot dimensions
- Existing and proposed structures
- Driveways and access points
- Utility locations (water, sewer, gas, electrical)
Benefit:
Ensure your project is accurately mapped and compliant with zoning regulations from the start, avoiding delays later.


Architectural Plans
What We Do:
- Floor plans
- Layouts
- Elevations
- Sections
Benefit:
Create detailed, code-compliant architectural designs that reflect your vision and maximize space efficiency.


MEP Engineering & Energy Compliance (Title 24 Energy Compliance)
What We Do:
- Electrical
- Plumbing
- Mechanical
- Energy reports
- Fire sprinklers
Benefit:
Properly designed MEP systems guarantee safety, functionality, and code compliance for your home.




3D Renderings & Visualization
What Our 3D Renders Are Used For
• Project visualization prior to construction
• Client presentations and decision-making
• Design validation and coordination
• Marketing and promotional materials
• Conceptual support for planning or preliminary reviews
Types of 3D Renders We Offer
• Exterior building renderings
• Interior space renderings
• ADUs, additions, and residential projects
• Commercial tenant improvements
• Conceptual and pre-construction visuals
Surveyor at Work with Total Station
(Engineering-Ready Support)
• Precise topographic data collection
• Existing conditions and site features
• Elevations, spot grades, and contours
• Field data prepared for engineering and design coordination
• Support documentation ready for engineering review and sealing when required


Why Work With Us
• One team for architecture, engineering, and permits
• Experience with multiple city digital platforms
• Reduced coordination errors
• Faster turnaround and fewer revisions
• Clear scope and transparent process
Ready to start your residential project? Contact us today and let our experts guide your project from planning to permit approval.
