Solar Permit Plans & Energy Solutions
Make the switch to clean, renewable energy and start saving on your electricity bills with professional solar panel installation.
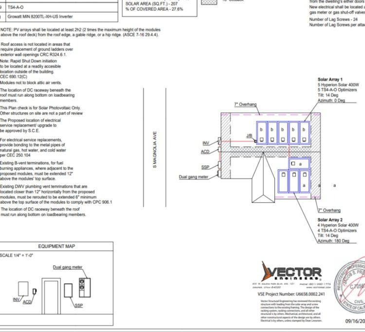
Solar & Energy Systems Design
What We Do:
- Residential & Commercial Solar System Design
- Permit-Ready Solar Plans
- Industrial, agricultural, and large-scale solar systems
- EV Charger Load Calculations & Infrastructure Design
- Battery Storage & Backup Power Systems
- Grid-tied, hybrid, and off-grid solutions
- Electrical load analysis and energy optimization
Benefit:
Reliable, code-compliant solar and energy solutions designed to optimize electrical capacity, reduce energy costs, and support future expansion.



Fully Approved & Certified Solar Installations
All our solar panel projects are reviewed, approved, and permitted by the corresponding fire, county, engineering, and city authorities.This ensures safe, code-compliant, and professionally certified solar installations.
Fire District Approval
Our solar panel systems comply with official fire safety requirements, including access pathways, safety clearances, and emergency signage required by the local Fire District, ensuring a safe and fully approved installation.

County-Reviewed and Approved Solar Plans
The project was reviewed and approved by the County Building & Safety Department, confirming that the structure, mounting system, and electrical installation comply with all current building codes.

Certified Structural Engineering
All our projects include plans stamped by licensed structural engineers, ensuring the roof can properly support the photovoltaic system in accordance with state and local regulations.

City-Approved Solar Installation Permit
The corresponding city officially approved the project, authorizing the installation of the solar system on the property in compliance with municipal ordinances and urban regulations.

GO GREEN
Why Go Solar in 2026?
Switching to solar energy is one of the smartest decisions you can make for your home, your finances, and the planet.
Control & Savings
Lock in your electricity rate and protect yourself from future increases while saving money long term.
Tax Credits & Incentives
Get up to 30% back through federal tax credits plus valuable local incentives.
Increase Home Value
Solar homes sell 4–6% higher and up to 20% faster.
Protect the Planet
Reduce fossil fuel dependence and leave a sustainable legacy.
Reliable Backup Power
Battery systems keep your home powered during outages.
Fast Installation
Most installations are completed in less than one month.
OUR WORK
Recent Solar Installations
Take a look at some of our recently completed solar panel projects for homes and businesses.
OUR SOLAR SERVICES
Frequently Asked Questions About Solar
Here are answers to the most common questions homeowners and businesses ask before going solar.
OUR COMMITMENT
Our Mission & Goals
At Permits Jobs Plans MGT Construction LLC, our mission is to help homeowners and businesses harness the power of solar energy through reliable, efficient, and sustainable solutions.
Renewable Energy
We provide sustainable solar panel systems designed for long-term performance.
Cost Savings
Our solutions lower electricity bills by delivering clean, cost-effective solar energy.
Expert Installation
We deliver professional installations with the highest safety and quality standards.
Environmental Impact
By adopting solar energy, we help reduce carbon emissions and support a cleaner future.


















